Casa SSG2024 - Casale Sul Sile, TrevisoRealizzato
Photos ©Marco Cappelletti





















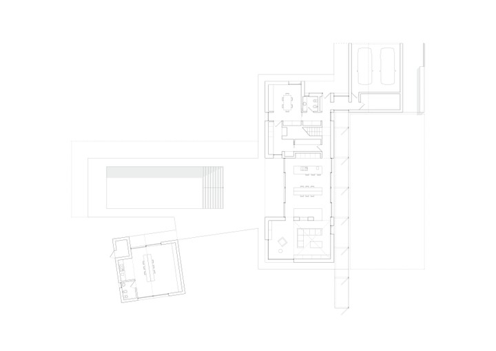
The design concept is simple: three juxtaposed volumes set within the Treviso countryside, where the roof becomes the project’s defining feature. The living spaces are fluid and, through large glazed openings, engage in a continuous dialogue with the garden and the surrounding landscape. The interior unfolds across varying heights, framing ever-changing views of the countryside through expansive windows. The main building extends over two levels and accommodates the residence, the social heart of the project, while two smaller adjoining volumes serve the family’s everyday needs.